Thông tin công trình

Anh Thủy

Nghĩa Hưng - Nam Định

5m x 21m

2 tầng

Kiển Trúc & Xây Dựng Alpha House

Đang cập nhật

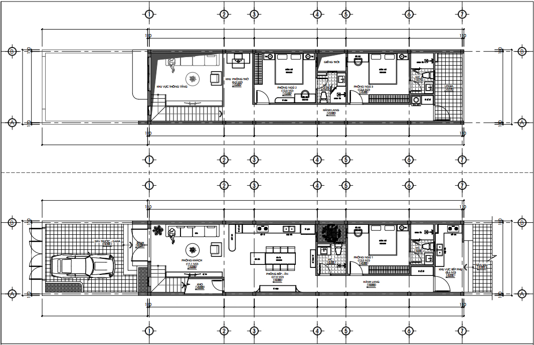
- Tầng 1: Sân trước, Phòng khách, Phòng bếp ăn, 1 ngủ khép kín, 1 vệ sinh, Khu bếp phụ, Sân sau
- Tầng 2: Khu thông tầng, Phòng thờ, 2 phòng ngủ khép kín, Khu giặt phơi

Sơ đồ mặt bằng
  • img-floor
Để lại câu trả lời
Gửi yêu cầu tư vấn
Tại sao lại chọn Alpha House?
  • Đội Ngũ Chuyên Gia Giàu Kinh Nghiệm
  • Chất Lượng Đảm Bảo
  • Quy Trình Làm Việc Chuyên Nghiệp
  • Giải Pháp Thiết Kế Sáng Tạo và Tối Ưu
  • Dịch Vụ Thi Công Trọn Gói
  • Cam Kết Hài Lòng Khách Hàng
Các công trình liên quan

Công trình gần đây nhất

MẪU THIẾT KẾ NHÀ NGHỈ THEO PHONG CÁCH HIỆN ĐẠI CHO KHÁCH HÀNG TẠI NAM ĐỊNH - NHÀ NGHỈ MINH ĐẠT
  • Khách hàng

    Anh Thái
  • Địa chỉ

    Nam Định
  • Kích thước

    9m x 21m
  • Tổng kinh phí

    Đang cập nhật.
THIẾT KẾ NHÀ 2 TẦNG 1 TUM 3 PHÒNG NGỦ ĐẸP MỘNG MƠ
  • Khách hàng

    Anh chị Đức Diệu
  • Địa chỉ

    thị trần Cồn - Hải Hậu - Nam Định
  • Kích thước

    5m x 16.5m
  • Tổng kinh phí

    Đang cập nhật.
MẪU NHÀ PHỐ MẶT TIỀN 6m XU HƯỚNG TÂN CỔ ĐIỂN NHẸ
  • Khách hàng

    Anh Công
  • Địa chỉ

    Xuân Trường - Nam Định
  • Kích thước

    Đang cập nhật.
  • Tổng kinh phí

    Đang cập nhật.
THIẾT KẾ NHÀ PHỐ - 5 TẦNG 1 TUM - ANH THÂN
  • Khách hàng

    Anh Thân
  • Địa chỉ

    Yên Lũng - An Khánh - Hoài Đức - Hà Nội
  • Kích thước

    9m x 12m
  • Tổng kinh phí

    Đang cập nhật.
THIẾT KẾ NHÀ PHỐ - 3 TẦNG - ANH SƠN
  • Khách hàng

    Anh Sơn
  • Địa chỉ

    Nghĩa Hải - Nghĩa Hưng - Nam Định
  • Kích thước

    5m x 20m
  • Tổng kinh phí

    Đang cập nhật.
THIẾT KẾ NHÀ PHỐ - 3 TẦNG 1 TUM - ANH CHỊ ĐẮC HẠNH
  • Khách hàng

    Anh chị Đắc Hạnh
  • Địa chỉ

    Nghĩa Trung - Nghĩa Hưng - Nam Định
  • Kích thước

    4.5m x 22m
  • Tổng kinh phí

    Đang cập nhật.
MẪU NHÀ 2 TẦNG ĐƠN GIẢN NHƯNG CÓ ĐIỂM NHẤN CHO GIA CHỦ VÀ ĐỦ TIỆN NGHI
  • Khách hàng

    anh Thắng
  • Địa chỉ

    Nghĩa Hưng - Nam Định
  • Kích thước

    5m x 17m
  • Tổng kinh phí

    Đang cập nhật
MẪU NHÀ THIẾT KẾ ĐỂ KINH DOANH KẾT HỢP SINH HOẠT GIA ĐÌNH TIỆN NGHI VỚI MẶT TIỀN 10M
  • Khách hàng

    Đang cập nhật
  • Địa chỉ

    Nghĩa Hưng - Nam Định
  • Kích thước

    10m x 22.5m
  • Tổng kinh phí

    Đang cập nhật